
Vždy, když vidím v okolí Prahy siluetu satelitního městečka s dlouhými řadami rodinných domů, kde se snaha po maximálním využití pozemků projevuje sníženou urbanistickou i architektonickou kvalitou zástavby, vkrádá se mi na mysl neodbytná myšlenka, nakolik se odlišuje kvalita bydlení v těchto satelitech od bydlení v tolik diskutovaných panelových sídlištích. Přitom i poměrně rozsáhlý soubor rodinných domů lze vyřešit účelně a elegantně, jak tomu mimo jiné nasvědčuje i stavba Top Rezidence, která soutěžila o titul Stavba roku 2018.
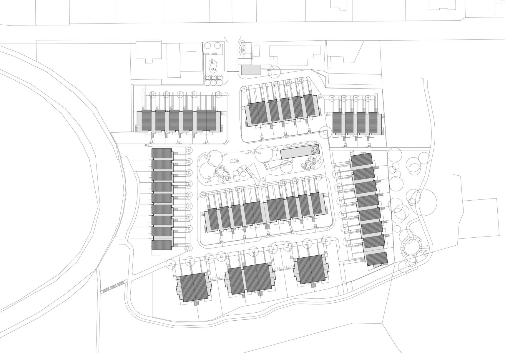
Obytný soubor Top Rezidence Šárecké údolí je situovaný do prostoru Baráčkovy cihelny uvnitř přírodního parku Šárecké údolí – Lysolaje, mezi ulicemi V Šáreckém údolí a Horoměřická. Jedná se o klidnou a malebnou lokalitu, nepříliš vzdálenou od centra – autobus MHD jede na stanici metra Bořislavka pouze několik minut. Pozemek se nachází v hlubokém zářezu údolí a naposledy se využíval jako výrobně skladový areál. Veškeré objekty však byly, kromě komína cihelny, v rámci nové výstavby odstraněny.
Chcete číst dále?
Zaregistrujte se zcela zdarma a získejte přístup ke všem článkům.
Máte účet? Přihlaste se.
- Místo: Praha 6 – Dejvice, V Šáreckém údolí 2770
- Investor: KKCG Real Estate, a.s., Praha
- Autoři: ŠAFER HÁJEK ARCHITEKTI, s.r.o. – Jaroslav Šafer, Oldřich Hájek, Pavel Lesenský, Jakub Koníř, Olga Kostřížová
- Projektant: AED project, a.s. – Aleš Marek, Karel Chlupáč, Marek Ženka, František Roztočil
- Dodavatel: CASTA, a.s., Písek
- Vybraní spolupracující výrobci: Heidelbergcement Group – vápenopískové bloky Quadro – E1/1 (175); Isover, CIUR – zateplení EPS GreyWall, Climastone S; Atrea, a.s. – větrací rekuperační jednotky
- Obestavěný prostor: 47 000 m3
- Zastavěná plocha: 4800 m2
- Doba výstavby: 03/2015 – 12/2017
- Stavba Top Rezidence Šárecké údolí získala nominaci na titul Stavba roku 2018 za vytvoření netradičně pojatého obytného souboru rodinných domů se zřetelem k pojetí veřejného prostředí mezi nimi.

Náves mezi domy
Cílem autora projektu (mimochodem, investor si ho vybral ze soutěže deseti architektonických kanceláří) bylo vytvořit v areálu velký, centrálně situovaný park, propojený s okolním lesem. Měl mít charakter „návsi“ s všestranným společenským využitím včetně aktivního odpočinku. U padesáti rodinných domů je proto také klubovna, do níž bylo zakomponováno komínové těleso původní cihelny, dále také jezírko a recepce. Její obsluha na požádání umožní vjezd – obyvatelé domů ovládají závoru prostřednictvím čipu.
V celém areálu jsou minimalizovány asfaltové povrchy komunikací, doprava byla řešena jediným komunikačním okruhem, doplněným zálivy slepých komunikací. Parkovou část dělí velké balvany a drátěné klece, porostlé zelení, malé travnaté vyvýšeniny jsou osázeny vzrostlými stromy. (Na řešení veřejného prostoru a zeleně kladl investor mimořádný důraz.)

Promyšlený urbanismus
V celém areálu se nevyskytují dvě řady rodinných domů, situovaných proti sobě, takže nevzniká stísněný uzavřený prostor s oboustrannou zástavbou. Přiléhají buď k centrálnímu prostoru, nebo k okolní přírodě. Hmotová strategie řešení řadových domů vychází z myšlenky rozdělení základního obdélníkového půdorysu na dva menší, vzájemně posunuté a do sebe zaklesnuté obdélníky.
Tato strategie se odráží ve tvaru zastřešení jednotlivých objektů i v jejich v barevném řešení, které navazuje na barevnost historické cihelny. Část budov je řešena v kombinaci obkladu cihelnými pásky a šedobílé omítky, další část kombinuje stejnou omítku s obkladem z červeného cedru.
V obytném souboru byly realizovány čtyři velikostní typy řadových rodinných domů, zahrnující krajní a středové sekce. V jižní části areálu jsou pak skupinky dvojvil a trojvil, situované směrem k lesu.

Dispoziční řešení
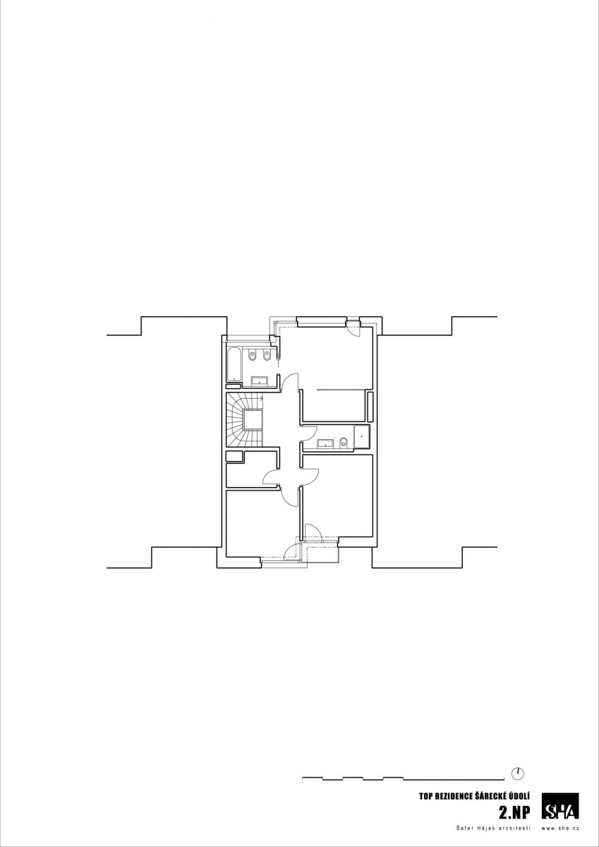
Rodinné domy mají dvě nadzemní a jedno podzemní podlaží, přičemž suterén je řešen jako polozapuštěný a podlaha přízemí je půl podlaží nad úrovní terénu. V suterénu jsou kromě garáže i další servisní prostory, jako technická místnost, místnost pro domácí práce, fitness a podobně, v přízemí na předsíň navazuje hlavní obytný prostor s kuchyní, pracovnou a příslušenstvím. V patře se nacházejí ložnice, šatny a koupelny.
U všech objektů je rozměrná garáž pro dvě auta, u půdorysně menších budov parkují vozidla za sebou, u větších vedle sebe. Tím se eliminovala potřeba venkovních parkovacích stání a na vnitřních komunikacích areálu se vyskytují pouze krátkodobě parkující vozidla – tento fakt zjevně přispívá ke zvýšení uživatelského komfortu areálu.

Konstrukce a materiály
Většina domů byla založena na železobetonové základové desce o tloušťce 300 milimetrů, u dvou sekcí je realizováno založení na pilotách. Vzhledem k tomu, že se jedná o lokalitu se středním radonovým rizikem, tvoří celoplošná hydroizolace z pásů z modifikovaného asfaltu i protiradonovou izolaci.
Stěnové nosné konstrukce jsou z vápenopískových bloků tloušťky 175, respektive 200 mm, u suterénních stěn zatížených zemním tlakem jsou konstrukce o téže tloušťce z monolitického železobetonu. Ze železobetonu jsou i monolitické obousměrně pnuté desky s tloušťkou 200 až 250 mm, které tvoří stropní konstrukce.
Obvodový plášť budov je buď typu ETICS, nebo se jedná o provětrávaný zateplovací systém. Vnější vrstvu kontaktního zateplovacího systému tvoří omítka nebo obklad z keramických pásků. Provětrávaná fasáda má vnější obklad z dřevěných prvků ve svislém či vodorovném směru, fixovaných na soustavu dřevěných nosníků.
Každý z rodinných domů má dva typy střešních konstrukci, a sice šikmou a plochou střechu. Šikmá střecha je dvouplášťová provětrávaná konstrukce, kde je spád 18 % tvořen dřevěnými sbíjenými vazníky s bedněním, na kterém je uložena krytina z ocelového plechu s polyuretanovou krycí vrstvou – krytina je spojována na stojatou drážku.
Srážkové vody se odvádějí zapuštěným žlabem na spodní hraně střechy, žlab je opatřen bezpečnostním přepadem. Plochá střecha je jednoplášťová duo skladba s hlavní hydroizolační vrstvou z PVC fólie, přitížené násypem z říčního kameniva. I tato část střechy má bezpečnostní přepad. Vnitřní schodiště jsou zakřivená, světlá šířka prefabrikovaného schodišťového ramene je minimálně 900 mm.

Schodiště ze suterénu je povrchově upraveno protiskluzným nátěrem. Uložení prefabrikátů na nosných konstrukcích je řešeno s ohledem na požadavky stavební akustiky. Podlahy byly realizovány jako těžké plovoucí podlahové konstrukce: na kročejové izolaci je roznášecí vrstva z anhydritu, eventuálně betonové mazaniny, nášlapnou vrstvu tvoří dřevěné lamely nebo keramická dlažba. Pod kročejovou izolací je vrstva polystyrenu, která se využila pro rozvod instalací.
Otvorové výplně jsou vesměs dřevěné, zasklívací jednotku tvoří trojsklo s teplým distančním rámečkem. U vybraných okenních a dveřních otvorů je příprava pro montáž vnějších žaluzií. Garážová vrata s elektrickým pohonem jsou tepelně izolační, sekční, výsuvná.
Převážná většina vnitřních povrchů stěn a stropů byla opatřena broušenou sádrovou omítkou v tloušťce 15 milimetrů. V koupelnách a na WC jsou na stěnách keramické obklady, pod nimiž je ve sprchových koutech vyvedena hydroizolační stěrka do výšky dvou metrů; v prostoru za umyvadlem dosahuje stěrka výšky okolo 1,20 metru.
TZB
Každý objekt je vybaven závěsným plynovým kondenzačním kotlem, napojeným na koaxiální kouřovod, vyústěný nad střechu budovy. Teplou vodu zajišťuje nepřímotopný zásobníkový ohřívač. V rámci klientských změn bylo možno využít přípravy pro instalaci chladicího zařízení splitového typu, kde se předpokládá umístění venkovní chladicí jednotky na střeše. U všech rodinných domů je instalováno nucené větrání s rekuperací, větrací jednotka je umístěna v suterénu.
Bydlení pro potěšení
Šárecké údolí dlouho bylo místem výhradně výletním. Romantické skály, potok, zeleň, to dohromady tvořilo oblíbené místo kdysi vskutku celodenních výletů daleko za hranice Prahy. Jistě, byly tu malé osady, byly tu na potoce mlýny, ale nebyla to pražská adresa…
Jak čas plynul, Praha se rozšiřovala, vzdálenosti se zkracovaly, romantika Šáreckého údolí zůstávala, byť byla poněkud omezena nejprve výstavbou nedalekého obytného souboru na Červeném vrchu a následně vybudováním rekreační přehrady, údolí však samo pořád bylo výletnicky přitažlivé. A bydlelo se jinde, blíž k dopravě, k obchodům, k zábavě, tady zůstávala historická zástavba spíše domkového a usedlostního typu.
Doba se však zásadně proměnila. Vzdálenosti při výběru bydlení téměř nehrají roli, všude se dá přece dojet autem, důležitější je poloha a prostředí. Zeleň a klid, to se cení jako hodně vysoké hodnoty. Proto i Šárecké údolí se stalo předmětem zájmu pro výstavbu nového bydlení. Samozřejmě, že se předpokládá zástavba především vilová, protože to je dnes území přesně pro tento druh výlučného bydlení. A přesto se tu objevily i domy přece jen jiného typu.
Jmenuje se ta skupina Top rezidence, má sice samostatný, hlídaný vstup, ale jinak vypadá docela neobvykle. Je to vlastně soubor rodinných domů, většinou řadových a několika dvojdomů. Spíše střídmě působících, i tam, kde je zřejmé, že obytné plochy je víc. Domy jsou jednotné ve svém výrazu, ale ne stejné, jsou různě veliké, ale i tak mají zřetelná jednotná pravidla základní dispozice a celkové kompozice.
Dvě nadzemní podlaží a pod tím zasunutá garáž. Sešikmené střechy s úžlabími kolmo k uliční frontě. Bělostná omítka ustupujících částí v kombinaci s keramickým či dřevěným obkladem toho, co vystupuje. Maximálně velká okna, ale pořád s dostatečnou mírou obytnosti a zjevně uchovávaného soukromí. Domy, které dávají najevo, že se v nich pohodlně, ale ne s prostorovou opulencí bydlí (jakoby dobře dbaly na svou vlastní udržovatelnost). Z rozložení oken se dají číst přehledné a promyšleně skládané dispozice.
Zahrádky jsou před domy i za nimi, sice úzké, ale přesně tak akorát, aby se na nich dalo bydlet a taky aby se daly udržovat (byť u jednoho z domů je překvapivě položen umělý trávník, to však není podle původního architektského záměru). Před vjezdy do garáží jsou zatravňovací dlaždice, aby zelené plochy byly co největší.
V tom však ještě netkví všechny výjimečnosti této rezidenční skupiny. U souborů rodinných domů se obvykle moc nepočítá s veřejným prostorem. Jistě, jsou v nich komunikace, jak pro auta, tak (někdy) i pro pěší. A pak už jen soukromé prostory jednotlivých majitelů, tedy to, co lze prodat, přitom prostory dost často oddělované neproniknutelnými (a to i pohledově) ploty. Tady je to jinak.
Tato skupina si dovolila vytvořit ve svém centru veřejný prostor, který je určen všem obyvatelům skupiny. Náměstí – nebo spíš náves – s komponovanou zelení, se sochařskou výbavou, nejen z velkých kamenů, ale se skutečným výtvarným dílem, s vodní plochou a taky s lavičkami. Park mezi domky. A nejen park, také prosklená klubovna, to když za nepříznivého počasí venkovní prostor nebude přívětivý.
Prosklená klubovna, nad níž se tyčí historicky působící komín. A pak je tu dětské hřiště, které však moudře není součástí tohoto veřejného ústředního prostoru, ale je vysunuto stranou, neb hlukově je to místo poněkud odlišných aktivit… Je to milá obytná skupina. Posazená pod zeleným svahem Vokovic, v zatáčce pod Horoměřickou ulicí, a přitom v klidu a ústraní. Praha je nedaleko, ale zde je klid odpovídající přírodnímu charakteru místa. Přívětivý prostor k bydlení.





