
Hospodářské budovy u historického statku na Kokořínsku byly dostavěny v původním architektonickém duchu – jejich přízemní část má zdivo z pískovcových bloků, konstrukce patra je roubená dřevěná. U obytné části jsou konstrukce převážně roubené. Roubené části mají nové hliněné vymazávky, obnoveny jsou také hliněné omítky. Pokoje, které byly vestavěny do roubených konstrukcí, byly z interiéru opatřeny tepelnou izolací z hliněné mazaniny se slámovou řezankou, nanášenou ve třech vrstvách.
Historie statku je podobná jako u mnoha jiných zemědělských usedlostí: na historických fotografiích zdobí vyřezávanou část štítu iniciály J. H., odkazující na prvního majitele z rodu Homutů Josefa, který statek koupil koncem 70. let 19. století. Hospodářství zvelebovaly tři generace až do počátku druhé světové války.
Chcete číst dále?
Zaregistrujte se zcela zdarma a získejte přístup ke všem článkům.
Máte účet? Přihlaste se.
O statek pak rodina přišla hned dvakrát – po okupaci ho zabrali Němci, poté propadl při kolektivizaci zemědělskému družstvu. Budovy byly ponechány prakticky bez údržby. V roce 1992 statek koupil pan Pěnkava, který zahájil jeho rekonstrukci a také ho nechal zapsat do registru kulturních památek. Stavení tak zachránil od úplného zániku. Přes veškerou snahu vybudovat zde ubytovací zařízení se nakonec rozhodl statek prodat.
„Panu Pěnkavovi se hluboce obdivujeme za jeho statečnost a vizi. V roce 2014 se v naší hlavě zrodila myšlenka vybudovat na Kokořínsku rodinný penzion. Už předtím jsme se rozhodli, že tu chceme trvale žít, takže to byl jen další krok, jak v milovaném kraji zapustit kořeny. Začalo tedy dobrodružství rekonstrukce statku. Zahájili jsme ji v září 2015 po roce projekční činnosti,“ uvádí architekt Petr Lorenc a dodává: „Hospodářské budovy z toho nejhoršího zachránil pan Pěnkava. Měly propadlé klenby, propadlé střechy včetně krovu, poškozené pavlače.“
- Investor: Homutův statek s.r.o.
- Autor: Ing. arch. Petr Lorenc, Ing. Kateřina Lorencová Holanová
- Projektant: Ing. Lada Kotláříková, Ing. arch. Petr Lorenc; Ing. Ivan Beneš – statika; Ing. Pavel Protiva – PBŘS; Ing. Martin Bureš – elektroinstalace; Ing. Jakub Huml – vytápění; Ing. P. Záruba – VZT; Jan Hána – ZTI
- Dodavatel: Roubenky Střihavka s.r.o.
Obnova statku získala Cenu za nejlepší rekonstrukci památkového objektu v soutěži Stavba roku Středočeského kraje 2018. Z hodnocení poroty: Stavba je příkladnou ukázkou obnovy kulturní památky, kdy při maximálním zachování památkových hodnot stavby lidové architektury byl nalezen nový účel jejího využití v souladu s podnikatelským záměrem.

Původní dispozice a konstrukce
Dostavba hospodářských budov byla provedena v původním architektonickém duchu. Původně se využívaly jako stáje, v patře byly oddělené prostory pro sušení různých plodin včetně divokého chmele. Přízemní část má převážně kamenné zdivo z pískovcových bloků, dvorní průčelí je omítané, směrem do zahrady bylo ponecháno v pohledové formě. Konstrukce patra je roubená dřevěná.
Konstrukce obytné části je roubená a omítaná – jak obvodové stěny, tak vnitřní příčky. Prostory přiléhající k hospodářské části stavení měly zděnou konstrukci. Směrem ke styku obou částí byly opět hospodářské prostory pro ustájení dobytka. Obě části objektu propojuje pavlač, zavěšená na dřevěné stropní konstrukci. Nad obytnou částí je dřevěný trámový strop s povaly, nad původní hospodářskou částí jsou stropy s křížovými, valenými a lunetovými klenbami. Nad přenášejí zatížení podlah ve 2. NP a jsou nosné pro dřevěnou pavlač, která probíhá podél obvodových stěn dvorního průčelí.

Návrh obnovy
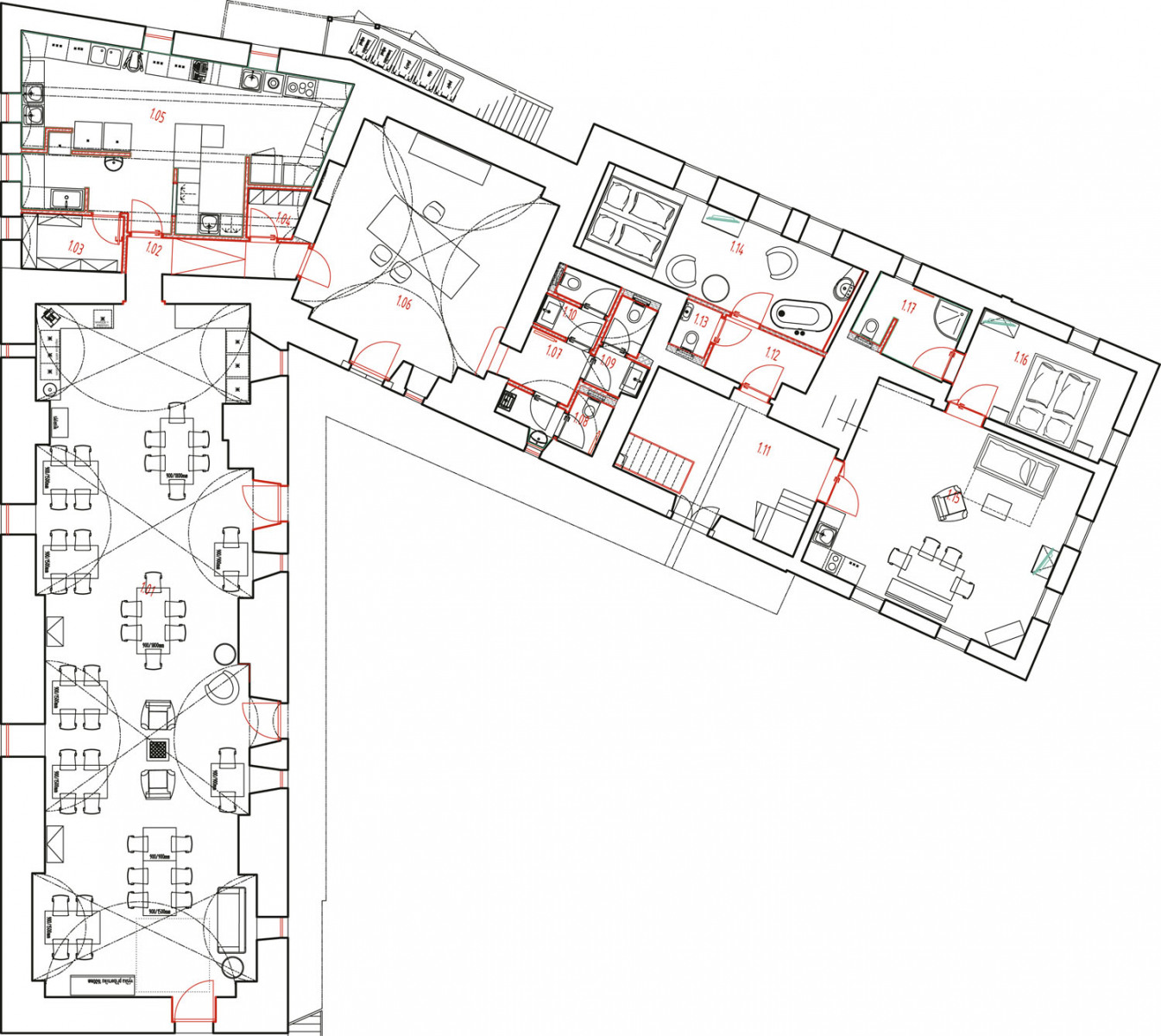
Základní dispozice zůstala zachována, upravena byla jen v části kuchyně a vestavbou sociálních zařízení do pokojů v roubené části objektu. Sedm pokojů má vlastní hygienické zázemí, tři apartmány také kuchyňku. Společenský sál byl vybudován z bývalé stáje. Slouží jako jídelna, kuchyně, technické a sociální zázemí.
V přízemí se nachází recepce, přes kterou je přístup do kuchyně a do jídelny. K pokojům se vchází stávajícím vstupem v přízemí, kde se nachází jeden pokoj a apartmán. Historické schodiště ve vnitřním vstupním prostoru bylo repasováno. Ve 2. NP je v původní obytné části velký apartmán, v roubené hospodářské části mezonetové pokoje. Třetí apartmán se nachází ve 2. NP nad kuchyní.
Je samostatně přístupný po dřevěném venkovním schodišti, které bylo vyrobeno nově se zachovanými řemeslnými detaily na zábradlí a opláštění. Půdní prostor se využívá jako součást mezonetových pokojů a pro technické zázemí. Je tu umístěna vzduchotechnická jednotka pro větrání kuchyně, technologie vytápění a ohřevu teplé vody. Část půdy zůstala otevřená a prázdná.

Z průběhu stavby
Protože se jedná o památkově chráněný objekt, do konstrukčního systému se významně nezasahovalo. Lokálně se posílily či vyměnily roubené nosné konstrukce (napadené trámy, podepření podlahových trámů nad klenbou jídelny, srovnání stropních trámů hospodářské části do vodorovné úrovně).
Roubené stěny byly sanovány: odstranila se hliněná vymazávka mezi trámy, které byly důkladně ošetřeny. V místech, kde bylo dřevo napadeno dřevokazným hmyzem a houbami, se trámy nahradily novými. Nové nenosné svislé konstrukce na úrovni 1. NP byly realizovány z keramických tvarovek, v patře jako lehké dřevěné trámkové konstrukce opláštěné OSB deskami.
Stavební procesy vycházely z tradičních postupů a materiálů používaných při stavbě tohoto typu objektů: obnova roubených konstrukcí včetně tradičních spojů a hliněných vymazávek, obnova hliněných omítek, repliky špaletových oken, repliky kazetových interiérových dveří, zachování hliněných mazanin na půdě, obnova kamenné pískovcové klenby (bývalý chlév), tradiční podlahové krytiny.

Špaletová okna byla ve velmi špatném stavu, navíc pocházela z různých časových období. Proto byla nahrazena replikami. Stejně tak zbytky interiérových dveří byly nahrazeny přesnými replikami podle dochovaných fragmentů. Vnější výplně otvorů na „omítané části“ jsou v odstínu tyrkysové mátové, která je jednotící barvou celého objektu.
Výplně otvorů v roubených konstrukcích jsou pak v odstínu signální bílé. Pokoje přístupné z pavlače mají „dvojité dveře“ – na vnitřním líci se osadily nové tepelně izolační dřevěné prosklené dveře (bílé s čirým zasklením), z pavlače vnější svlakové prkenné dveře v odstínu roubení.
U pokojů, které byly vestavěny do roubených konstrukcí, bylo z interiéru provedeno obvodové tepelné zaizolování hliněnou mazaninou se slámovou řezankou, nanášenou ve třech vrstvách. Poslední je opatřená vápennou bílou malbou.
Izolace roubených konstrukcí se prováděla tak, aby byla v maximální možné míře zachována jejich plasticita a rovinná nesourodost. Roubené konstrukce oddělující pokoje jsou opatřeny zvukově izolační minerální vatou ve dvou vrstvách, s vrchní vrstvou hliněné omítky opatřenou bílou vápennou maltou.
Obnoveny jsou také venkovní zpevněné plochy. Použily se pro ně převážně dochované pískovcové bloky, terasa je ze štípané opuky. Ostatní plochy byly zatravněny, popřípadě řešeny jako parková úprava nebo užitková zahrada.

Technické vybavení
V objektu byl navržen systém ústředního vytápění a ohřevu TUV, kotelna je v původním přístavku stodoly. Zdrojem tepla jsou dva automatické ekologické kotle na uhlí (jeden z nich je rezervní, do budoucna určený pro vytápění stodoly). Otopná voda se přivádí do technické místnosti v podkroví, na podružném rozdělovači je rozdělena na tři okruhy pro otopná tělesa a okruh pro VZT jednotku.
Navíc je ještě z přívodního potrubí provedena odbočka na okruh pro ohřev teplé vody. Nucený oběh otopné vody v každém okruhu zajišťuje čerpadlo s elektronickou regulací otáček. Otopná voda v okruzích pro OT má předpokládaný teplotní spád 75/60 °C regulovaný pomocí trojcestného směšovacího ventilu podle ekvitermní křivky, otopná voda v okruhu pro VZT jednotku má předpokládaný teplotní spád 75/60 °C regulovaný pomocí trojcestného směšovacího ventilu podle požadavků VZT jednotky.
Okruh pro ohřev teplé vody je regulován pomocí spouštění oběhového čerpadla podle teploty v zásobníku teplé vody. Pro ohřev vzduchu ve VZT jednotce pro provoz kuchyně je určena teplá voda, tepelné ztráty větraných místností jsou kryty ústředním vytápěním. Chlazení vzduchu pro kuchyň je zajišťováno instalací Split systému.
Výhled do budoucnosti
Součástí zemědělské usedlosti je také stodola. V úrovni vazných trámů bude rozdělena na přízemí a podkroví. V přízemí se plánuje bazén se samostatným zázemím a s venkovní terasou, doplněný samostatným provozem sauny. Dále tu bude místnost pro uskladnění kol. V patře vzniknou víceúčelová místnost, prostor určený pro masáže, samostatný čtyřlůžkový apartmán a technické zázemí objektu.





