
Do soutěže Stavba roku se za dobu jejího trvání hlásilo již několik staveb, které byly obtížně typologicky zařaditelné. S jednou z nich jsme se setkali v loňském roce – jde o stavbu zkráceně označovanou jako UPO, což znamená Učiliště požární ochrany ve Velkém Poříčí. Vzdělávací a výcvikové středisko Hasičského záchranného systému slouží i ostatním složkám Integrovaného záchranného systému při výcviku instruktorů pro práci ve výšce.
Již zadání stavby nebylo obvyklé: v roce 2002 dostalo učiliště ve Velkém Poříčí od generálního ředitelství hasičského sboru pověření k odborné přípravě hasičů – instruktorů pro práci ve výšce a nad volnou hloubkou. Výcvik hasičů lezců v té době přinášel řadu komplikací technického i administrativního charakteru, protože se k němu obvykle využívaly staré objekty, určené k demolici nebo zásadní rekonstrukci.
Chcete číst dále?
Zaregistrujte se zcela zdarma a získejte přístup ke všem článkům.
Máte účet? Přihlaste se.
Tento fakt nepříznivě ovlivňoval kvalitu výcviku, neboť umožňoval jen omezený počet výběru variantních situací nasazení hasičů lezců, nehledě na problémy s lokalizací jednotlivých objektů, vhodných pro výcvik. Ideálním řešením se v tomto případě jevilo vybudování specializovaného výcvikového střediska, které by umožnilo soustředit výcvik do jedné lokality, jež by nabízela co možná nejširší spektrum zásahových možností včetně potřebného zázemí.

Inspirace se hledala ve Francii, konkrétně ve městě Crolles u Grenoblu, kde existuje jediné evropské vzdělávací a výcvikové centrum obdobného typu. Patří firmě Petzl, což je významný výrobce vybavení pro lezce. Problém spočíval v tom, že se zde školí záchranáři lezci pro nasazení převážně ve vysokohorském prostředí, to znamená pro práci s výrazně odlišným charakterem v porovnání s pracovním nasazením hasičů. Bylo tedy jasné, že pro výcvik hasičů lezců a ostatních složek IZS a HZS je třeba vybudovat specifický objekt, který bude respektovat co nejširší záběr specifických požadavků jejich práce a bude schopen reagovat i na vývoj nových technik a technologií.
Následně byli k řešení koncepce objektu přizváni architekti a konstruktéři náchodského Atelieru Tsunami, kteří také navštívili francouzské zařízení firmy Petzl jako jediný objekt, umožňující čerpání zkušeností a technického poznání. Následovala řada jednání s hasiči, postupné hodnocení stále se vyvíjejících variant koncepčního řešení objektu výcvikového polygonu až po jeho finální architektonické, konstrukční a provozní řešení. Další postup byl již standardní – od zpracování jednotlivých stupňů projektové dokumentace včetně jejich nezbytného projednání až po realizaci objektu.
- Místo: Areál požární stanice Náchod HZS KH; Náchodská 530, Velké Poříčí
- Investor: ČR – HZS Královéhradeckého kraje autor a projekt: Atelier TSUNAMI, s.r.o., Náchod – Ivo Balcar, Michal Ježek, Aleš Krtička, Pavel Velich
- Dodavatel: STYLBAU, s.r.o., Hradec Králové; stavbyvedoucí Petr Vinš
- Spolupracující dodavatelé: Česká Doka bednicí technika, s.r.o. – segmentový bednicí systém; TR-walls, s.r.o. – instalace lezeckých stěn a cest; KOVO, s.r.o. – ocelová konstrukce haly, opláštění; H. A. N. S. stavby – prefa betonové dílce
- Plocha pozemku: 13 040 m2
- Zastavěná plocha: 750 m2
- Užitková plocha: 604 m2
- Obestavěný prostor: 8042 m3
- Doba výstavby: 01/2018 – 03/2019
- Celkové náklady stavby bez DPH: 45 936 000 Kč
- Způsob financování: 85 % nákladů z Evropské unie (IROP), zbytek byl hrazen ze státního rozpočtu

Pro profesionály i dobrovolníky
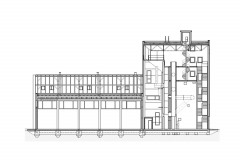
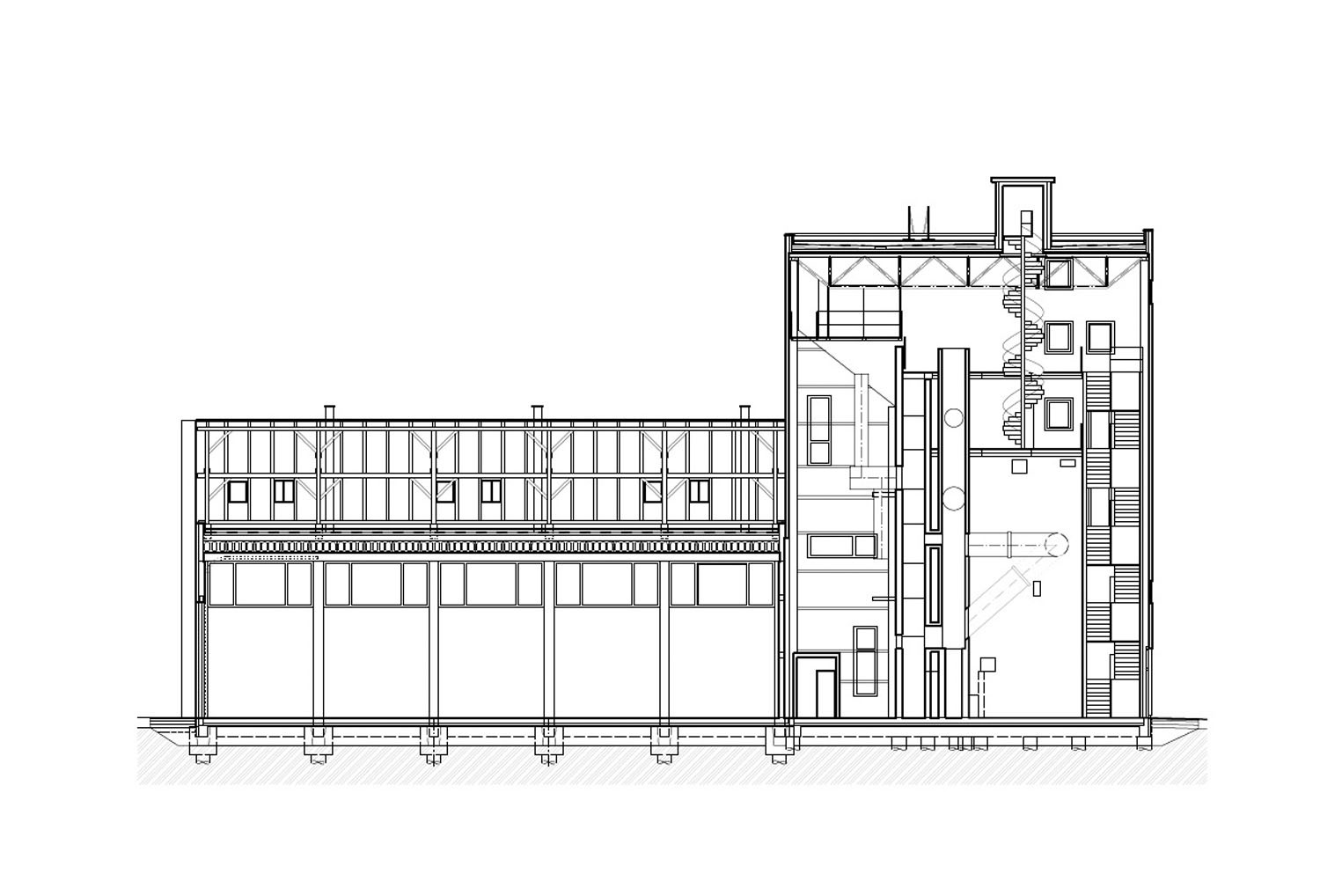
Objekt UPO slouží především ke školení a výcviku profesionálních hasičů, ale kromě toho zde mohou cvičit i členové všech složek IZS včetně sborů dobrovolných hasičů. Budova se skládá ze vstupního modulu se skladem pomůcek a hygienickým zázemím a samotného výcvikového objektu s vertikální a horizontální halou. Tvůrci dispozičního řešení měli práci usnadněnou tím, že zázemí pro účely provozu na polygonu lze využít ve stávajících objektech výcvikového střediska. Nový objekt je tak jednoznačně zaměřen především na výcvikové aktivity.
Výcvikový prostor
Horizontální výcviková hala o půdorysném rozměru 25,50 x 15,10 a výšce 8,50 metru je v podstatě univerzálním výcvikovým prostorem, do něhož může přijet i hasičská technika. Její nosnou konstrukci tvoří železobetonový prefabrikovaný skelet založený na velkoprůměrových pilotách, kde jsou prefabrikované sloupy vetknuty do kalichů základové konstrukce, stropní konstrukci tvoří železobetonové předpjaté panely.
Pro obvodový plášť jsou využity vyzdívky z pěnosilikátových tvárnic, z vnější strany zateplené fasádními panely s minerální vláknitou izolací, podlahu tvoří drátkobetonová deska. Střešní plášť byl s ohledem na předpokládaný provoz řemísto: šen jako pochozí z betonových desek na rektifikovatelných podložkách.
Na střeše je instalováno pole patkových podpor, které umožňují variabilní montáž cvičných konstrukčních prvků v závislosti na typu a charakteru výcviku. Cvičná stěna s cvičnou střechou, tvořenou různými variantami střešních plášťů, je realizována ve formě lehké dřevostavby jako částečná nadstavba této části.
Také druhý výcvikový objekt – vertikální hala o půdorysném rozměru 15,90 x 18,10 metru a výšce 21,20 metru, má skeletovou konstrukci, nosné prvky však tvoří ocelové válcované nosníky a kombinaci s nosníky příhradovými. I tato část stavby byla založena na velkoprůměrových pilotách, podepírajících základové patky, na kterých jsou osazeny ocelové sloupy nosného skeletu.
Stropní konstrukce je z trapézových plechů s nabetonávkou, podlahy jsou opět z drátkobetonu. Obvodový plášť tvoří lehké fasádní panely s tepelnou izolací z minerální vlny, lezecké stěny mají vnější povrch z monolitického železobetonu, umožňujícího dokonalé kotvení jisticích prvků.
Koncepčně je tato část obvodového pláště řešena jako sendvič s tepelnou izolací z extrudovaného polystyrenu. Stejně tak jsou z monolitického, navíc vodostavebního betonu realizovány všechny vnější železobetonové konstrukce i další interiérové konstrukce v těch místech polygonu, kde se předpokládá zatopení vodou.

Zdolávání věže i labyrint
V horizontální hale, která je univerzálním výcvikovým prostorem, je umístěna i rozběhová dráha pro jednu z tradičních hasičských soutěžních disciplín – zdolávání věže. Většina důležitých výcvikových komponent je umístěna ve vertikální hale. Jedná se především o univerzální polygon, který tvoří potrubní a příčkový labyrint, studniční šachta, hasičská věž, pádová věž s komponenty pro trhové zkoušky a 20 metrů vysoká lezecká stěna.
Přestavitelný polygon stísněných prostor umožňuje výcvik zásahu ve velmi specifických částech stavebních objektů, jako jsou potrubní systémy, šachty a podobně, stejně jako v komplikovaných přírodních podmínkách, například v jeskyních. Všechny tyto prostory lze cíleně zaplavit nebo zadýmit, aniž by tím byla ohrožena bezpečnost výcviku. Cvičné prostory jsou pod kamerovým dohledem a navíc je zde i systém nouzových vstupů, využitelných v případě problémových situací.
Objekt polygonu je z hlediska výcviku opravdu univerzální. Střecha umožňuje nácvik zásahů při silném větru nebo sněhových přívalech, lezecká stěna disponuje několika typy hran pro nácvik takových aktivit, jako je například výstup či slaňování s nosítky. V objektu je i široké spektrum různých prostupů, vhodných pro nácvik koordinovaných zásahů záchranářů. Podlaha v hale dokonce umožňuje instalaci vzrostlého stromu pro nácvik zásahu.
Tvůrčí tým plně respektoval technické a dispoziční požadavky zadání, jak ale stavba ukazuje, věnoval mimořádnou péči i architektuře této dominantní budovy. V průběhu její realizace došlo k unikátní situaci, kdy po vybetonování monolitických konstrukcí obou věží vznikla velmi zajímavá skulptura, která by byla schopna samostatné existence. Následně však musela být v souladu s projektem zakryta fasádní konstrukcí a interiérovou lezeckou stěnou.
Stavba v podobě sochy slouží hasičům
Hasiči. Asi jedna z nejuctívanějších profesí, kterou si lze představit. Také nejnebezpečnějších. Nejen že hasí požáry, a je jedno, jestli to je kůlna na zahradě nebo velká továrna, pomáhají při ekologických katastrofách, povodních, vichřicích, ale také vyprošťují lidi z výtahů, zvířata ze situací, která by je stála život…
Asi nelze vyjmenovat všechno, kdy hasiči pomáhají. Občas si říkám, kde se asi takoví lidé školí – vylezou kamkoli, vlezou do čehokoli, zemská přitažlivost je pro ně cosi neznámého; nedělají sice efektní kousky cirkusových umělců, ale svými výkony za nimi nezaostávají. To, že mají někam do nekonečna posunut práh strachu o sebe, je asi samozřejmé. Být hasič, to není zaměstnání, to je povolání.
Ovšem cvičit se musí. Technika staveb, kde zasahují často, se rozvíjí velmi rychle, nové materiály dovolují vytváření nových prostorů, ekonomické tlaky na výstavbu zase vedou k omezování některých jiných. Ten, kdo chce, kdo musí v takových budovách zasahovat, musí být na to připraven. Natrénován. Odkud? Z Učiliště požární ochrany – UPO. Tedy, tam se netrénují všichni, tam trénují ti, co to pak učí dál.
Ovšem UPO ve Velkém Poříčí, to je především stavební div. Vedle cesty se najednou objevuje robustní věž, ostře červená, poutající pozornost zdaleka. V ní je však cosi, co lze nazvat největší betonovou plastikou u nás. Patří to do kubismu? Nebo spíš do expresionismu? Prolamuje se v obdivuhodných zlomech, vysunuje se dopředu ostrým hrotem.
Surový beton ve své přirozeně teplé barevnosti je lemován červeně ze všech stran a vypadá to, jako by se tu do stavby zakousl nějaký bájný obr – či jako by silou vnitřního napětí sama stavba expandovala, pak se svého výbuchu lekla a strnula. Už navždy. Opojné divadlo hmoty. Opojné divadlo stavitelské práce.
Vedle věže už je spíš nenápadný domek, má průběžné lamelami kryté okno a na místě střechy několik typů otevřených krovů. A z „rubové“ strany, tedy ze dvora, nabízí nejrůznější variace střech, střešních vikýřů a všelikých prolamovanin, které má tak ráda „lidová“ stavitelská tvořivost a podnikatelské baroko.
Zadní stěna věže je klidná, skutečně už rovná, jen občas s okny, s balkony, se schody nikam, trochu surrealistická architektonická kompozice. Jenomže to není umělecký záměr, to je prostě zcela funkční řešení, simulující situace, které na stavbě, z níž je potřeba někoho zachránit a již je potřeba uhasit, mohou nastat. Pak dál je ještě cosi, co vypadá jako rozestavěné nebo právě rozebírané stavení, i to je ovšem cvičiště, ve srovnání s tím, co je dál, je takové jaksi normální …
Uvnitř nízké části domu je rozlehlá hala, tady lze trénovat cokoli. Ve výškové části je dílem horolezecké cvičiště, dílem cosi, co se dá nazvat asi jen „opičí dráha“ – různé průlezy, více či spíše méně osvětlené, zatáčející se chodby a tunely proplétané do sebe, s možností naplnit je kouřem – tady si hasič může vyzkoušet skutečně „bojové“ prostředí. Ta horolezecká cvičiště jsou svislá, převislá, naklopená nejrůznějšími směry, osazená různobarevnými úchyty, které označují různě obtížné lezecké situace. A pak je tu sestava lan, na nichž lze trénovat slaňování, snášení osob, věcí nebo i zvířat.
No, je tu i běžné kovové schodiště, kterým lze vystoupat až pod střechu, a pak ještě vřetenové schodiště až na střechu, z níž je krásný výhled do zdejšího malebného kraje. Na jeho užívání tu ovšem obvykle není čas. Z vybavení vnitřku se nabízí otázka, zda ta sochařská kompozice na hlavní stěně je taky lezeckým polygonem. Úchyty na ní sice nejsou, ale…
Zbývá k prozkoumání poslední strana věže, ta je ovšem skoro obyčejná, sice ostře červená, ale zato se sympaticky grafickým rozložením úzkých oken, tu posazených svisle a tu vodorovně v příjemné kompozici. Učiliště požární ochrany ve Velkém Poříčí je nejen místem, které pomáhá dobrému výcviku hasičů. Je to stavba vzrušující a poutající. Stavba – socha. Úchvatné dílo.





