
Stěny domu v Třeboni byly poškozeny vlhkostí natolik, že se autorky projektu rozhodly pro systém odvětrávaných podlah. Skladby podlah nyní kromě odvětrávání zajišťují také tepelnou izolaci stavby. Kromě toho se opravoval krov, povalové stropy musely být nahrazeny. Místnost s klenbami je nyní propojena s dvorkem, v její blízkosti vznikl pokoj s velkorysým rohovým oknem. Obytná je i část podkroví.
Dům není památkově chráněný, ale stojí v městské památkové rezervaci. I kdyby neměl žádná omezení, stejně by stálo za to zachovat jeho charakter, právě tyto malé nenápadné stavby dotvářejí historická centra našich měst. Při jejich obnově se objevují podobné nebo stejné problémy. Většinou bývají notně zchátralé, poškozené úpravami a přístavbami z druhé poloviny 20. století a zdaleka nevyhovují současným nárokům na bydlení.
Chcete číst dále?
Zaregistrujte se zcela zdarma a získejte přístup ke všem článkům.
Máte účet? Přihlaste se.
„V průběhu rekonstrukce jsme stále objevovali něco nového, náš projekt byl vlastně jen příprava na stavbu. Dům byl v hrozném stavu, teklo do něj, pršelo ze všech stran, takže zdivo bylo aspoň do metru své výšky degradované, vlhké, zasolené. To byl jeden z hlavních problémů. Nejdříve jsme předpokládali, že vyměníme krov z 19. století, později se ukázalo, že bude stačit, když ho opravíme. Naopak u stropu v místnosti do ulice jsme mysleli, že zůstane, nakonec jsme ho museli vyměnit,“ vzpomíná architektka Markéta Cajthamlová.

Dodavatel: Jiří Janoušek – RENOSTAV Třeboň
Zastavěná plocha: 143 m2
Užitná plocha: 203 m2
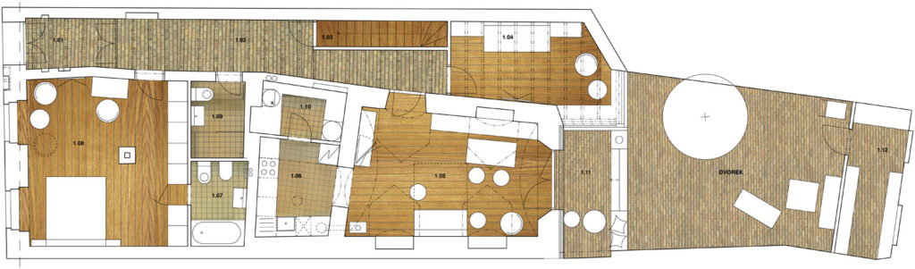
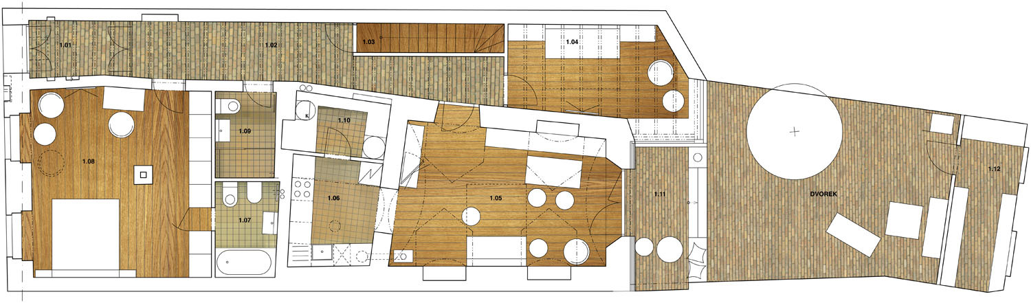
Dispoziční a stavební úpravy
V návrhu autorky ponechaly hlavní obytné místnosti – ložnice má okna do ulice, pokoj s valenou klenbou se novým oknem otevírá do dvora. Vedle něj vznikl na místě původního schodiště tzv. vejminek s rohovým oknem. Byly odstraněny staré komíny, na místě černé kuchyně jsou nyní nová kuchyně, koupelna, WC a technická místnost. Dům je poměrně dlouhý, chodbou se dříve procházelo od vstupních dveří až do dvorku. Teď je chodba o něco kratší, přesto stále důležitou součástí interiérů.
„Na její zadláždění jsme využili staré půdovky. Pro kuchyň, komoru a koupelny byla vyrobena dlažba s historickým vzorem, ostatní podlahy jsou dubové. Dlažba na dvorku je z odřezků z cihel, v jeho zadní části je nová kůlna s dílnou. Stěnu kůlny jsme se severním průčelím domu sjednotili fasádou z modřínových latí. Všechny nové dřevěné prvky v interiéru jako stropy, příčky a vnitřní dveře jsou z běleného smrku. Část nábytku byla vyrobena na míru a kombinuje bělený smrk, dubové prkno a lakovanou MDF,“ dodává Markéta Cajthamlová.

Stavební úpravy měly především vyřešit vlhkost obvodového a vnitřního zdiva, proto započaly vybouráním všech podlah. V interiérech byly otlučeny omítky do výšky 1,0–2.5 m, odstraňovaly se také vnější omítky. Všechny podlahy jsou nyní provětrávané. Vlhkost se z domu účinně odvětrává komínovým efektem, tedy bez použití ventilátoru. Půdorys domu byl rozdělen na dvě části, každá z nich má vlastní přívod vzduchu, odvod vzduchu je společný průduchem nad střechu. V první části je přívod vzduchu v jižní fasádě, v druhé na severní fasádě vedle prosklených dveří.
Z průběhu prací
Podlahy se odstranily do hloubky základů, v některých místech byly základy dodatečně podezděny nebo vyspraveny. Potrubí pro přívod a odvod vzduchu je napojeno na potrubí, které ústí pod nopovou fólií. Na svislé větrací potrubí byla v nadstřešní části osazena komínová větrací hlavice.
U podlah v přízemí domu byly zvoleny dvě odlišné skladby – první z nich je pod dlaždicemi, druhá pod prkny. U obou z nich má ale zásadní roli nopová fólie, která plní funkci hydroizolace a zároveň pomáhá podlahy odvětrat. Nové stěny a přepážky mají vodorovnou hydroizolaci z modifikovaných asfaltových pásů, která je přilepena na nopové desky.
U východního obvodového zdiva byla provedena injektáž. Vnitřní stěny byly opatřeny sanační omítkou, obvodové stěny domu hydroizolační stěrkou od nopové fólie až po horní hranu podlahových vrstev.

Detail skladby podlah:
Podlaha na chodbě s dlažbou: rostlá zemina; beton tl. 50 mm; nopová fólie Lithopast Instal + beton tl. 100 mm; beton + KARI síť tl. 60 mm; DEK PIR podlahové desky tl. 2 x 40 mm; separační PE fólie; beton + KARI síť 60 mm; vápenná malta 20 mm; dlažba z půdovek 60 mm
Podlahy v kuchyni, koupelně a komoře mají odlišné složení nad deskami DEK PIR – separační PE fólie; betonová mazanina s pomocnou sítí; lepidlo a dlažba v kuchyni a komoře
Koupelna – separační PE fólie; beton + KARI síť 100 mm; nivelační stěrka s topnou rohoží 8 mm; hydroizolační stěrka; lepidlo a dlažba
Dřevěné podlahy: rostlá zemina; beton tl. 50 mm; nopová fólie + beton tl. 100 mm; beton + KARI síť tl. 60 mm; pěnové sklo Refaglas; polštáře 80 mm; dřevěná prkna tl. 18 mm
O rekonstrukci hovoříme s Markétou Cajthamlovou
- Zásadní pro vás bylo odstranění vlhkosti ze zdiva, také jste museli zabránit tomu, aby do domu další vlhkost pronikala. Odvětrávané podlahy jsou vlastně tradiční řešení, dnes se k němu přistupuje s novými materiály a technologiemi. Vy jste se rozhodli pro poněkud neobvyklou skladbu podlah. Jaký jste pro to měli důvod?
Obrátili jsme se na Jiřího Hořínka a Šárku Draxlovou z Ústí nad Labem. Už jsme je znali, často navrhují odvětrání systémem iglú. Tušili jsme, že pro odkopání podlahy pro všechny vrstvy nebudeme mít dostatečné výšky, základy byly poměrně mělké. V některých místech, kde byly rozpadlé, jsme je museli podezdívat, doplňovat. Nemohli jsme tedy jít cestou systému iglú, který je poměrně vysoký. Rozhodli jsme se proto použít nopovou fólii, která je celoplošně profilovaná a má výšku asi deset centimetrů.
Celou podlahu jsme vykopali do hloubky základů, tedy asi 40 cm, a provedly se nové skladby. Dostali jsme se na rostlou zeminu, ta se srovnala, pak se betonovala deska. Všechny kamenné základy se dobetonovaly mělkým soklem, abychom pak mohli vkládat další vrstvy a také se mohla na boky vytáhnout asfaltová izolace. Na betonovou desku se pak pokládala nopová fólie Lithoplast, která se zalila betonem s kari sítí. Na to se pak dávaly tepelné izolace – tvrzený extrudovaný polystyren tam, kde jsou dlažby, u dřevěných podlah je pěnové sypané sklo. Vlastně nahradilo škváru, která se dřív běžně používala. Na polystyren se pak znovu nanášel beton a nakonec dlažba, na vrstvu pěnového skla už přišly polštáře pro dřevěné podlahy.
Pro odvlhčení štítové stěny do ulice jsme navrhli větraný kanál. Je asi 60 cm široký, překrytý plechy a zabetonovaný. Nasávací trubky jsou ze severu a z jihu, napojené jsou na vzduchový systém nopové fólie. Položené jsou také v prostupech zdí, aby vzduch dostatečně proudil. Celé je to odvedené nad střechu, komínový efekt funguje výborně. Ověřili jsme si to kouřovou zkouškou. Než se to celé zalilo, zapálila se patrona, abychom viděli, zda kouř vychází až nad střechou a nikde jinde. Dům už je zhruba rok po rekonstrukci, vlhkost úplně zmizela. Toto řešení se výborně osvědčilo.
- Kde byla vlhkost nejvyšší? Kdyby se znovu objevilo zatékání, bude tento systém stačit?
Nejvíc byla postižena východní stěna v místě bývalé černé kuchyně. Zdi, které byly nejvíc mokré, jsme ještě opatřili injektáží. Systém odvětrávaných podlah pro odstranění vlhkosti postačí, vlhkost ze zdí odvádí velmi dobře, cirkulace vzduchu skutečně funguje. Dodavatel stavby byl zvyklý na jiné řešení, ale když si ověřil tento systém, rozhodl se, že ho bude využívat také. Dříve například vykopali podlahy a položili tam fólie, ale tímto způsobem vlhkost spíše uzavřeli. V našem případě tvoří hydroizolaci samotná nopová fólie. Chtěli jsme také zabránit tomu, aby vlhkost do domu nepronikala z boku, proto jsme na nopovou fólii natavili asfaltové pásy a přetáhli je nad úroveň terénu. Podobně jsme řešili také prostupy kanalizace.


- Schodiště jste umístili do jiné pozice, část podkroví se využívá jako obytná místnost. Jaké jsou nyní skladby podlah na půdě?
Nad klenbou byla původně prkna, pod nimi škvára. Nad zbytkem prostoru poměrně silné cihly, uložené do malty. Čistily by se špatně, kromě toho byly vysoké, ani by se nám do skladby podlahy na chodbě nehodily. Proto jsme pro chodbu použili půdovky z jiné stavby. Výšku podlah v podkroví jsme chtěli sjednotit. Pod podlahu v ložnici jsme opět místo škváry dali pěnové sklo. V druhé části domu, kde je nyní nový trámový strop s dřevěným záklopem, jsou poměrně vysoké skladby izolací z minerální vaty.
- Starý krov se vám podařilo opravit, povalový strop jste ale nahradili. Opatřili jste střechu tepelnou izolací?
S krovem to bylo zpočátku nejisté, nakonec jsme vyměnili krajní trám, další z půlky, třetí jsme museli ohoblovat kvůli červotoči, čtvrtý byl v pořádku. Následovaly ještě dílčí opravy krovu. Zateplení střechy jsme řešili u ložnice pro hosty, zvolili jsme mezikrokevní izolaci. Další část podkroví slouží stále jako běžná půda s úložnými prostory. Na střeše jsou tradiční bobrovky.
- Fasáda do dvora je nyní úplně nová – historickou stavbu jste elegantně doplnili současnými prvky tam, kde to nijak neruší…
Je to odvětrávaná fasáda se vzduchovou mezerou a izolací z minerální vaty, finální vrstvu tvoří modřínové dřevo s lazurou. Dvorek tak tvoří svět sám pro sebe – v podstatě je to další obytná místnost s cihelnou podlahou a dvěma dřevěnými stěnami. Časem tu budou zasazeny popínavky, vybereme strom. Měl by vydržet poměrně extrémní podmínky, bývá tu velké horko, ale i zima.
FOTOGALERIE:
Hana Vinšová
Foto: Ester Havlová





