
Villa Mia se stala příkladem využití současných technologií pro automatizaci domácností. Její roční spotřeba energie činí 8 MWh ze sítě, z toho 1 MWh dodává solární elektrárna na střeše. Velká okna se otevírají k jihozápadu, takže sluneční zisky tvoří značnou část energie na vytápění objektu. Čisté linie stavby přitom navazují na slavnou tradici brněnské funkcionalistické architektury. Různé výškové úrovně a drobnější hmoty využívají prostorové možnosti pozemku a zároveň udržují přívětivé měřítko stavby.
Určujícím faktorem řešení byla omezená plocha pozemku, který má velikost 340 m2, a stávající vjezd v jeho jižní části. Autor projektu architekt Pavel Jura proto dům umístil k severovýchodní části parcely tak, aby udržel dostatečný odstup od veřejného prostoru a zároveň vytvořil co největší osluněnou část stavby.
Chcete číst dále?
Zaregistrujte se zcela zdarma a získejte přístup ke všem článkům.
Máte účet? Přihlaste se.
Ve svém návrhu definoval skladbu dvou objemů s různou funkcí, různým odstupem od ulice a výškovým osazením v terénu. Výškovému osazení hmot domu odpovídá také úprava pozemku, který je rozdělen na veřejnou část s příjezdem od komunikace a privátní, zvýšenou část se zahradní úpravou.

Architektonické řešení
Vila respektuje principy energeticky pasivní stavby: na prosluněných fasádách jsou prosklené plochy s exteriérovým stíněním, severovýchodní fasáda se v maximální míře uzavírá. Obvodový plášť má větší tloušťku tepelné izolace. Architektonické řešení vnějšího pláště stavby a kompozice hmot jsou střídmé, s minimem výrazových prostředků a materiálů tak, aby vznikla stavba imunní vůči krátkodobým módním trendům.
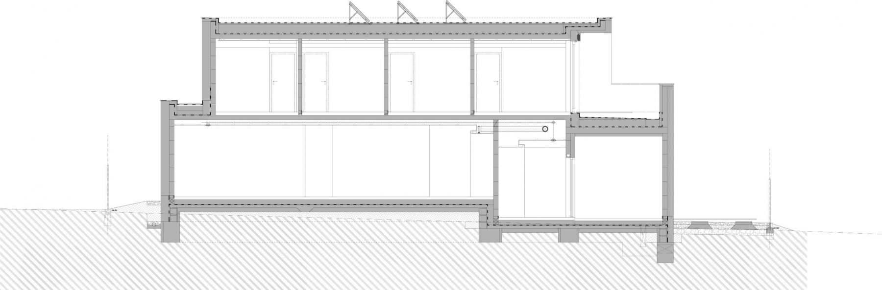
Skladba několika objemů s různou výškou a osazením v terénu umožnila umístit vjezd a vstup na pozemek na snížené úrovni, kde je část vstupních a technických prostor s garáží. Předstoupením vůči hlavní hmotě zároveň vymezuje – společně s výškovým uspořádáním – privátní prostor zahrady vůči polootevřenému vstupnímu prostoru. Hlavní hmotu domu tvoří dvoupodlažní korpus s předstupujícími lodžiemi na osluněných fasádách a terasou na střeše garáže.
Řešení interiérů bylo založeno na principech osvědčené tzv. lodní dispozice, kterou v tomto případě doplňuje koncept polopater a snížené technické části. Zakládá energeticky pasivní koncept stavby – všechny obytné místnosti jsou orientovány na jihozápadní stranu, zatímco prostory zázemí a komunikací byly umístěny podél severní fasády.
Garáž je vyčleněna mimo vytápěnou obytnou část dispozice. Pro optimalizaci návrhu bylo vypracováno posouzení PHPP a audit pro potřeby NZU, návrh předpokládal nároky stavby menší než 15 kWh/m2/rok.
Uspořádání světlých místností působí jednoduše, vznikl tak vzdušný centrální prostor s kuchyní, jídelnou a obývacím pokojem. U obývacího pokoje, ložnice a dětských pokojů jsou prostorné terasy. Mezi další přednosti domu patří uživatelsky přátelské moderní technologie, nízké náklady na energie a stylový zevnějšek.

Tradiční technologie a materiály
Monolitické betonové pasy základových konstrukcí jsou lokálně vyztužené, s ustupující úrovní základové spáry. Svislé nosné konstrukce tvoří vápenopískové zdivo, místy je nahradily ocelové sloupky v prosklených stěnách. Vápenopískové zdivo bylo provedeno systémem strojního zdění.
Monolitické železobetonové desky vodorovných nosných konstrukcí jsou lokálně vyztužené žebry. Plochá střecha je jednoplášťová s pohledovým násypem kačírkem. Příčky jsou zděné z vápenopískových tvárnic. Fasády tvoří kontaktní zateplovací systém z EPS a světlá omítka, probarvená ve hmotě. Okna a dveře mají dřevohliníkové rámy.

Úsporný a chytrý dům
K vytápění se tu využívá především sluneční záření procházející prosklenou jižní fasádou, doplněné je o kompaktní rekuperační jednotku se dvěma malými tepelnými čerpadly. Jedno slouží pro ohřev vody, druhé pro vytápění či chlazení přiváděného čerstvého vzduchu, který je dále rozváděn do všech obytných místností.
Pro zajištění vyššího pohodlí a jako záloha pro chladnější dny má dům také přídavné podlahové topení. Roční spotřeba energie činí 8 MWh ze sítě, z toho je 1 MWh pokryta malou solární elektrárnou na střeše (1,5 kWp). Dům nepotřebuje ani plyn, ani pevná paliva. Pokud by se majitelé stavby rozhodli rozšířit plochu fotovoltaických panelů na střeše až na výkon 7,5 kWp a využívat například virtuální baterii od distribuční společnosti, energetická bilance domu by mohla být až nulová.
Rodinný dům je vybavený systémem pro automatizaci domácnosti, který je možno ovládat dálkově: od žaluzií, světel, topení a komunikace s dveřmi až po zavlažovací systémy a ovládání branek, a to pomocí aplikace instalované na tabletu nebo chytrém telefonu. Systém lze rovněž ovládat pomocí intuitivních nástěnných displejů, uživatelé mají k dispozici také data z meteostanice umístěné na střeše.
Design interiérů doplňují elektroinstalační prvky z řad solo® a Levit®. Petr Mašek, produktový specialista ze společnosti ABB, k tomu uvádí: „Na základě návrhu Pavla Jury jsou některé zásuvky a vypínače vestavěné do nábytku, aby přívodní kabely k reproduktorům, nabíječkám a dalším elektrickým zařízením nenarušovaly čisté linie.“





