
Dům byl postaven ve třicátých letech 20. století, pak byl několikrát dostavován a přestavován. Vzhledem k těmto zásahům přestala být jeho stabilita dostatečná. Základním rozhodnutím tedy bylo doplnit a ztužit jeho konstrukci ocelovým korzetem. Není pouze technickým prvkem, slouží také jako treláž pro rostliny, po architektonické stránce objekt sceluje.
Původní domek měl zhruba poloviční půdorys, sloužil pro víkendové a prázdninové pobyty. Postupně se pak slepoval, aby se v něm dalo bydlet trvale. „Podobný typ domu s falešnou mansardovou střechou v Praze – Suchdole vidíme poměrně často. Jeho mansardová stěna měla tloušťku jen 15 cm a musela by se výrazně zateplovat. Zvětší se tím ale její objem a celá stavba jakoby nabobtná, to jsme nechtěli. A zároveň jsme věděli, že ani není důvod střechu za každou cenu zachovat. Dům měl navíc špatnou statiku. Proto jsme začali s klienty hledat takové řešení, které by nějakým způsobem pojalo všechny tyto problémy. Investoři měli trochu rozdílné vidění, jak si představovali svůj rodinný dům – kamarád je více racionální, pro jeho ženu je estetika důležitá,“ uvádí architekt Jan Šépka.
Chcete číst dále?
Zaregistrujte se zcela zdarma a získejte přístup ke všem článkům.
Máte účet? Přihlaste se.
Autor projektu pak vytvořil více než sto různých variant, asi rok s kamarády přemýšleli, které řešení by naplňovalo představy obou z nich a navíc zahrnovalo i veškeré stavebně technické záležitosti. Uvažovali i o tom, že dům zbourají a postaví nový, ale zjistili, že finančně to nevychází nejlépe. Proto se přiklonili k tomu, že kolem domu vystaví novou ocelovou konstrukci. Rodina se čtyřmi dětmi navíc mohla po dobu stavby žít v zachovaném přízemí.
- Investor: rodina Králova
- Autor: Šépka architekti – Jan Šépka; spolupráce Jan Kolář
- Dodavatel: Mastavby s.r.o.
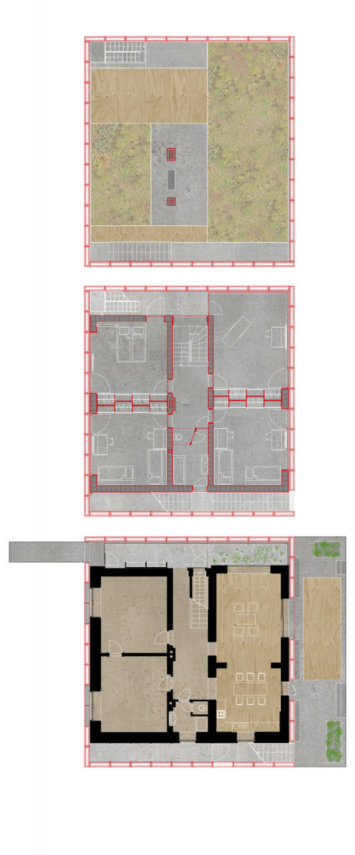
- Plocha stavebního pozemku: 708 m2 zastavěná plocha: 188 m2
- Celková podlahová plocha: 310 m2
- Střešní terasa: 165 m2
- Obestavěný prostor: 1410 m3

Konstrukce na zakázku
„Celé horní patro s mansardovou střechou jsme sundali a ponechali jen přízemní část stavby. Tu jsme obestavěli ocelovým korzetem, který má svůj vlastní základ a zároveň umožnil vybudování střechy a střešní terasy. Zvětšili jsme tak půdorysnou plochu domu, což bylo pro velkou rodinu důležité. A stavba díky novým nosným prvkům získala jasnou strukturu. Konstrukce zároveň slouží jako treláž pro popínavé rostliny, dům postupně celý zaroste. To bylo důležité pro majitelku, které se původní dům docela líbil a těžko se s ním loučila,“ upřesňuje Jan Šépka
„Korzet je sestaven ze stejných ocelových hranolů svařených z L profilů v modulu 1280 mm. Tento modul umožnil ideálně zachovat stávající otvory v ponechané části stavby. Jedná se o dva základní prvky na základě statických výpočtů. Dobře je to vidět na pohledech. Hodně jsem si hrál s rozměry ocelové krabičky, abych do nich dostal otvory ve spodní části domu. Původní rozměry oken a dveří zůstaly zachovány, dají se nyní používat stejně jako dříve. Nechtěl jsem, abychom měli více modulů. U vchodu vznikla zimní zahrada a díky probourání jednoho okna do obývacího pokoje jsme přes ni získali jižní světlo v interiéru. Z druhé strany jsem prostor kolem domu také zvětšil, jsou tam schody s možností výstupu na střešní terasu,“ dodává.

Přístavba z betonových tvárnic
Odstranění celé střechy umožnilo nejen efektivněji vyřešit problém zateplení, ale i úpravu dispozice ve druhém nadzemním podlaží tak, aby vyhovovala požadavkům investorů. Druhé nadzemní podlaží je zároveň v místě bývalé terasy rozšířeno o nový pokoj.
„Dolní část stavby tedy zůstala zachována, na ní jsme přistavěli z lehkých betonových tvárnic, které jsou navíc také izolační, další patro. Zděná konstrukce druhého patra doplňuje nosnou ocelovou část a pomáhá vynést novou střešní železobetonovou desku, která slouží jako pochozí terasa se zahradní úpravou. Pozemek není velký, takže střešní terasa je v tomto případě správné řešení – kromě toho, že tu vznikl příjemný pobytový prostor, má také funkci tepelně izolační. Treláže kolem domu byly osázeny různými typy rostlin, takže stavba časem úplně zaroste. V oknech jsou izolační trojskla. Jejich zasklení je bezrámové, i otvíravá křídla mají rám přetažený sklem,“ říká architekt.

Kouzlo hrubého interiéru
Interiéry spodní části domu zůstaly zachovány, ale mají krásná nová okna. U původního schodiště je nové pouze zábradlí. V interiérech nástavby zůstaly přiznané různé formáty tvárnic, které zedníci vyskládali tak, aby se prostřídaly. Stropy jsou z pohledového betonu, na podlahách a v koupelnách betonová stěrka.
Hrubý interiér v patře doplňují vysoké dveře a mobilní nábytek z březové překližky v podobě spacích buněk, skříní, které rozdělují místnosti, i solitérního nábytku. Nedílnou součástí každého pokoje byl návrh závěsů. Na stejně zvolený motiv si každý člen rodiny vybral své barevné řešení. Interiér i exteriér stavby tak vytváří platformu, která se bude v čase proměňovat.





