
V Třebíči byl letos dokončen dům, jehož tvar do značné míry předurčila okolní zástavba. Přesto je ve čtvrti naprosto výjimečný – zvenku jej vymezují betonové stěny garáže, nad níž už je jen poměrně drobná hmota obytné části v jednoduchém archetypálním výrazu. Interiéry autoři projektu navrhli velkoryse, přestože jsou vlastně poměrně malé. Originální a dobře promyšlené prostorové řešení, průhledy a pečlivě vybrané povrchy interiér prosvětlují a dodávají mu pocit volnosti.
Jakým soudobým vstupem je možné přispět do stabilizované obytné lokality z pozdních 90. let tvořené archetypální a měřítkově homogenní zástavbou domů se sedlovými střechami a vikýři? Pokorným. Protože byly tvar, objem a orientace předem dány, zbývající ztvárnění vnější formy už je jen ryzím projevem vnitřního uspořádání a snahy o nízkou energetickou náročnost.
Chcete číst dále?
Zaregistrujte se zcela zdarma a získejte přístup ke všem článkům.
Máte účet? Přihlaste se.
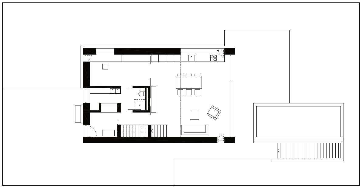
Velkorysé členění na veliké plochy hladkých omítek a zasklení ve smrkových rámech, řada výhledů a průhledů je příjemným zklidněním v pestrém kontextu. Servisní jádro domu osvobozuje fasádu a uvolňuje dispoziční řešení. Spojitý interiér plyne mezi místnostmi a patry.
Průhledy napříč v obou směrech uvolňují napětí mezi vnitřkem a vnějškem. Hrubé betonové tvárnice a strop z pohledového betonu vynesený robustním ocelovým průvlakem s táhly jsou výsledkem racionálních úvah o úspoře finančních i výrazových prostředků.
Hebké povrchy podlah a nábytku z březové překližky, korunované obloukem v hřebeni střechy, jsou naopak pečlivě zvolenou estetickou vrstvou, která z domu dělá domov. Oba kontrastující přístupy mají společného jmenovatele v precizně zpracovaných detailech, které nestárnou, a výrazové úspornosti, jež nechává volný prostor pro hlavní smysl existence domu – život v něm.
Dům vznikl pro babičku, její specifický životní styl a nároky. Otázky, které v procesu navrhování bylo třeba správně zodpovědět, vyústily v řešení, které stejně jako svěží babiččina duše nezestárne. Garáž se zelenou střechou je nekompromisním vymezením vůči výškovému rozdílu obou přiléhajících komunikací.
- Architekt: NOT BAD – Dominik Saitl, Benedikt Markel; spolupráce: Vilém Kocáb, Martina Požárová
- Stavební část: Energetika Staveb, Oldřich Both, Petr Taflíř, Miloš Janda, ING. Systém s.r.o.
- Dodavatelé: S. O. K. stavební, Josef Pejchal, Musil SDK, Janošík oknadveře, K-STAV Třebíč, HSE, Vratové Systémy VM, Strakon CZ, K-TOP, KP-Elektro, MSV vzduchotechnika, Vašín Podlahy, Enpeer Design, Pavel Zatloukal, František Nováček, Pavel Nováček, Josef Mezlík, Holspol
- Realizace: 2015–2019
- Plocha pozemku: 510 m2
- Zastavěná plocha: 97 m2
- Užitná plocha: 121 m2
- Obestavěný prostor: 475 m3

Konstrukce stavby
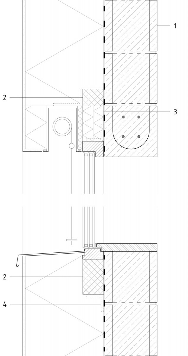
Svým vzhledem je dům upřímný a přizpůsobivý nosným konstrukčním materiálům, které nechává obnažené. Zvoleny byly na základě statických, technických a ekonomických požadavků. Nosné zdivo z betonových tvárnic vyplývá ze skladby stěny, respektive tloušťky její izolace.
Ve chvíli, kdy je dům izolovaný 30 cm silným expandovaným polystyrenem EPS grey, odpadá požadavek na tepelně izolační zdivo. Nosné zdivo má pouze funkci nosnou a v místech, kde je prolité betonem, částečně akumulační. Proto bylo zvoleno tak, aby nemuselo být omítáno a mohlo být ponecháno režné, případně stříkané barvou. Odpadá tak nejen pracnost s realizací omítek, šetří se i stavebním materiálem a nosné konstrukce zůstávají čisté a čitelné.
Dům je založen na základových pásech a patkách z prostého betonu třídy C25/30. Vnější obvod základů byl opatřen nenasákavou tepelnou izolací, prostupy základů jsou izolovány proti vlhkosti a radonu. Nad úrovní základových pasů se na štěrkopískovém hutněném podsypu vybetonovala deska, armovaná při spodním okraji kari sítí.
Všechna potrubí procházející železobetonovou deskou se ukládala před betonáží pomocí speciální tvarovky. Hlavní bariéra proti pronikání radonu z podloží a podzemní vodě je z asfaltových pásů, které jsou napojeny na vodorovnou hydroizolaci stěn.
Nosné zdivo a příčky v přízemí tvoří pohledové betonové tvárnice tl. 200 a 150 mm, v jejich dutinách jsou vedeny veškeré rozvody TZB. Příčky v patře jsou z CW profilů, opláštěné byly deskami z březové překližky. Stropní konstrukci tvoří monolitická železobetonová deska v pohledovém provedení.
Překlady a průvlaky jsou systémové z tvarovek. Krov sedlové střechy je dřevěný s ocelovými prvky v namáhaných částech, krytina skládaná betonová. Veškeré skladby střešní konstrukce byly navrženy difuzně otevřené a odvětrávané. Krov střechy je zaklopen sádrokartonovými deskami.

Jak dům, tak garáž používají pro nosné konstrukce stejný výchozí materiál – beton, jen vždy v jiné formě. Konstrukce garáže je navržena jako uzavřená bezešvá monolitická krabička. Volba technologie bílé betonové vany, kterou není potřeba izolovat proti vodě, eliminovala při práci ve výkopu na skále pod garáží pracné detaily.
Nosná konstrukce garáže ze želebetonu tak současně plní funkci hydroizolační i nosnou pro potřeby intenzivní zelené střechy. Strop garáže je zaizolován pojistnou hydroizolací z afaltových modifikovaných pásů.
Fasáda obytné části je opatřena kontaktním zateplovacím systémem ETICS třídy A. Zateplovací plášť tvoří pastovitá omítka s omezením „proti zelenění“ a s tepelnou izolací tl. 300 mm EPS grey návrhovou hodnotou součinitele tepelné vodivosti 0,032 W/mK.
Ostění a nadpraží jsou zatepleny přesahem hlavního izolantu fasády min. 50 mm EPS grey, parapety 20–40 mm XPS, perimetr. Podlahy na terénu EPS grey 2x 120 mm. Jako tepelná izolace pro kritické detaily byly použity tvrdé polyuretanové desky s návrhovou hodnotou součinitele tepelné vodivosti 0,021 W/mK.
Přímé dřevěné schodiště bylo osazeno na nosné stěny technické místnosti, jeho spodní část tvoří výsuvný nábytkový díl s úložným prostorem. Schody jsou akusticky odděleny od nosných konstrukcí a od stropu.
Nášlapné vrstvy podlah tvoří keramická dlažba v koupelnách, přírodní linoleum v obytných místnostech, březová překližka v ložnici a rohož z kokosových vláken v zádveří. Zpevněné plochy před domem a na zahradě jsou vydlážděny žulovými kostkami.
Okna z dřevěných smrkových profilů mají izolační trojskla solar Ug = 0,60 W/m2K a standard (Ug = 0,50 W/m2K). Osazena byla před vnější líc zdiva (předsazená montáž na kompozitové profily). Výrobní rozměry oken a jejich osazení bylo koordinováno s dodavatelem zateplení tak, aby umožnilo vložení izolace přes rámy oken min. 50 mm izolantu. Okna s orientací na jih, východ a západ mají screenové rolety.

Dosažení pasivního standardu
Tepelně technickým návrhem (orientace na světové strany, parametry obvodového pláště, účinnost zdroje tepla pro teplou užitkovou vodu a vytápění, větrání a rekuperace) můžeme objekt zařadit do kategorie domů s velmi nízkou energetickou náročností. Průměrný součinitel prostupu tepla je 0,19 W/m2K, měrná roční potřeba tepla na vytápění budovy 20 kWh/(m2.a), měrná neobnovitelná primární energie 87 kWh/m2.a, měrná celková dodaná energie 53 kWh/m2.a.
Zdroj tepla: tepelné čerpadlo vzduch-voda s topným výkonem 7000 W; pro teplovodní systém vytápění je provozován jako nízkoteplotní. Všechny místnosti v domě jsou vytápěny podlahovým topením. Mimo topnou sezonu je také možné ohřívat vodu v bazénu. Celý objekt je větrán jedním větracím úsekem. Větrání je řešeno rovnotlakým způsobem s přívodem upraveného vzduchu a s rekuperací tepla.





