
V loňském roce proběhla v Krajské nemocnici v Liberci první fáze rekonstrukce, druhá byla dokončena nedávno. Jednalo se o obnovu dvou historických budov, které nyní slouží pro oddělení psychiatrické péče. Stavební zásahy byly v obou případech značné, ve výsledku v daleko větším rozsahu, než se původně předpokládalo. Rekonstrukce jsou specifické tím, že na jejich začátku není možné určit rozsah prací. U obou domů se přistoupilo k některým změnám jejich původního konceptu, hlavně statického rázu.
Oddělení psychiatrické péče Krajské nemocnice Liberec bylo umístěno v technicky i morálně zastaralé budově, kterou bylo třeba rekonstruovat v souladu s koncepcí humanizace psychiatrické péče v ČR. Kromě toho bylo oddělení rozšířeno do další budovy, jež si také žádala zásadní úpravy. V budově I tak byly kompletně vyměněny prvky krovu i stropních trámů a nahrazeny válcovanými profily IPE. Po demontáži krovu se štíty zajistily ocelovou konstrukcí.
Chcete číst dále?
Zaregistrujte se zcela zdarma a získejte přístup ke všem článkům.
Máte účet? Přihlaste se.
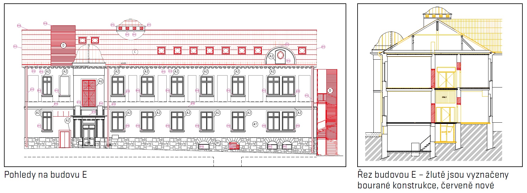
V druhé budově E se po vybourání podlah v 1. PP a 1. NP zjistilo, že spodní vrstvy neobsahují podkladní beton a hydroizolační vrstvu. Podkladní beton je tedy nový, na něj byla osazena hydroizolační vrstva. Po stavebně technickém průzkumu bylo dále zjištěno, že ani žebírkové stropy nejsou v takové kondici, jak se předpokládalo. Sanovaly se lepením uhlíkových lamel. Bylo to rychlé a úsporné řešení, jež navíc přispělo i k menšímu přitížení objektu. Kromě výměny části krovu a většiny bednění byly nahrazeny také střešní věžička a podokapní římsy. Budova E má jako nadkrokevní izolaci PIR panely.
Generální projektant: Storing spol. s.r.o.; zástupce Ing. Zbyněk Čihák
Dodavatel: Metrostav a.s., Divize 8; Ing. Jaroslav Stuchlík, Ing. Ondřej Matoušek
TDI: Jakub Valeš
Celkový objem prací budovy E+I: 120,8 mil. Kč bez DPH
První fáze stavebních prací
Budova I je po rekonstrukci bezbariérová, před vstupní částí je nová přístavba výtahu, součástí stavby byla i dodávka lůžkového výtahu. Upraven byl prostor vstupu do kontaktního pracoviště domácí péče v mezipatře mezi 1. NP a 1. PP. Odstranila se plochá střecha, přístavba vstupu byla nastavěna na výšku 1. NP a vestavěla se nová střešní konstrukce. Ostatní prostory byly komplexně zrekonstruovány. Nevyhovující konstrukce stropů a krovu se odstranily a nahradily, vyměnila se okna, objekt je z velké části zateplen.
V rámci stavebních úprav byly realizovány nové rozvody kanalizace uvnitř budovy. Napojeny jsou na šachtu jednotné kanalizace před objektem nebo do kanalizace v 1. PP v místě výměníku. Kanalizace kolem budovy byla zrekonstruována. Obnovena byla vodovodní přípojka, instalována jsou nová vzduchotechnická zařízení, vytápění objektu zajišťuje teplovodní ústřední vytápění. Zdrojem tepla je nová výměníková stanice pára/voda, napojená na přípojku páry z centrální kotelny v areálu nemocnice. Ve výměníkové stanici byl osazen nový kombinovaný rozdělovač, kde se topná soustava rozděluje do čtyř samostatných topných větví.
Demontována byla silnoproudá elektroinstalace a z přípojkové skříně byl napojen hlavní rozvaděč a další rozvaděče. V budově je instalován systém EZS s bezdrátovou nástavbou pomocí bezdrátového expandéru.


Rekonstrukce druhé budovy
Také tento objekt je nyní bezbariérový, u hlavního schodiště byl vestavěn lůžkový výtah. Součástí stavby bylo také zřízení korza v areálu nemocnice a odpočinkových prostor v zahradě. Pokoje pacientů byly řešeny převážně jako dvoulůžkové s vlastním sociálním zařízením. Hlavní provozy pro pacienty jsou umístěny v obou nadzemních podlažích a částečně v suterénu. Zázemí personálu včetně terapeutických prostor se nachází v podkroví, kromě toho je tu také strojovna VZT.
Přístavba terapeutické místnosti byla odstraněna, nahradila ji přístavba přes obě nadzemní podlaží. Nyní se tu nacházejí jídelna a terapeutická místnost. Upraven byl také prostor zásobovací rampy, kde vznikla drobná přístavba skladového zázemí. Střecha byla opravena včetně věžičky, žebříkové stropy se sanovaly uhlíkovými lamelami.
Část kanalizace splaškové vody je vedena pod základovou deskou. Rekonstrukcí prošla přípojka vody. Vzduchotechnika a vytápění byly řešeny stejně jako u budovy I, zdrojem tepla je nová výměníková stanice voda/voda, napojená na přípojku horkovodu. Ve výměníkové stanici byl osazen kombinovaný rozdělovač, kde je topná soustava rozdělena do čtyř samostatných topných větví: větev pro VZT; podlahové vytápění pro izolační pokoje; otopná tělesa v pokojích; otopná tělesa ostatní. Zdrojem tepla pro ohřev vody je druhý výměník voda/ voda a tři nepřímotopné zásobníky.
Text: Ing. Ondřej Matoušek
Foto: Metrostav







