
Když staví projektant, vznikne doslova vzorový pasivní dům. Jeden takový vyrostl na kraji jihočeské obce Myslkovice z cihel HELUZ Family 50 2in1, tedy z materiálu, který i bez dodatečného zateplení dosahuje nejlepší tepelněizolační parametry na trhu. Samozřejmostí byly i roletové a žaluziové překlady HELUZ, aby venkovní stínění, další stavební kámen (cihlového) pasivního domu, nerušilo na fasádě.
„Líbí se mi jednoduchost, symetrie, barevná střídmost, proto jsme vše směřovali do odstínů šedé a bílé,“ popisuje koncepci svého návrhu Ing. Jakub Kratochvíl, investor i projektant v jedné osobě.
Chcete číst dále?
Zaregistrujte se zcela zdarma a získejte přístup ke všem článkům.
Máte účet? Přihlaste se.
Střecha je proto antracitová, okna také a fasáda bílá. I část plotu bude z tahokovu, prostřihávaného plechu v antracitové barvě a pro terasu počítá s tmavě šedou břidlicí. „Stejný barevný koncept platí i pro interiér. Je rozumnější vymalovat na bílo a třeba pro kuchyňskou linku použít materiály, které se tak rychle neokoukají, ale dají se rozrazit různými barevnými doplňky, ty totiž časem vyměnit můžete. Zelené stěny se předělávají hůře,“ pokračuje investor.
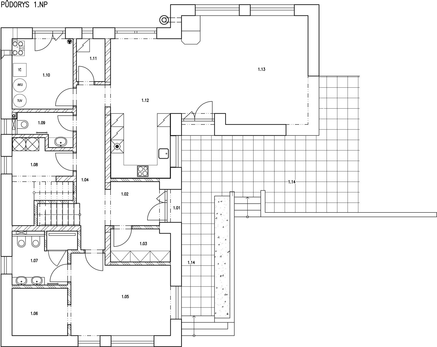
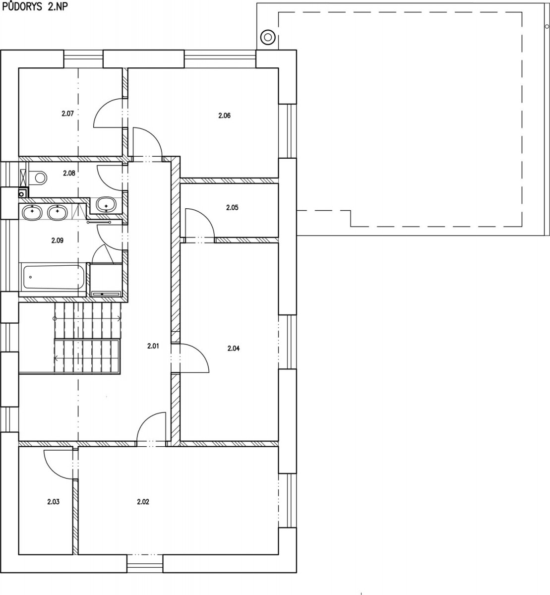
Dvoupodlažní dům s půdorysem ve tvaru písmene L a dvěma pultovými střechami je orientován do přilehlých polností, kde již není plánována další výstavba. Hlavní vstup je situován z jižní strany a přímo navazuje na komunikační chodbu vedenou středem domu. Z ní jsou zpřístupněny jednotlivé obytné místnosti a příslušenství v přízemí, a to včetně schodiště do podkroví. Z obývacího pokoje a pracovny je pomocí prosklené konstrukce a francouzského okna umožněn vstup a výhled přímo do zanázev: hrady. Jednotlivé místnosti a příslušenství v patře jsou přístupné z chodby, jež navazuje na schodiště z přízemí.
Obvodové konstrukce HELUZ Family 50 2in1
V průběhu stavby občas investor zaváhá, zda někde přece jen neušetřit, v tomto případě měl ale jasno: „Říkal jsem si, že pokud na něčem uspořit, tak na věcech, které půjdou vyměnit bez bourání. Třeba jsme zvolili levnější interiérové dveře, které jednou lehce vysadíte a koupíte nové. Což se ukázalo jako rozumné, protože máme malou dceru a očekávám, že až začne jezdit na odrážedle, tak dveře dostanou zabrat. Už to vidím na stěnách, kde jsou otisky ručiček, uražené rohy, dřív mě to trápilo, běhal jsem se štětečkem, teď už to neřeším,“ pokračuje spokojeně Ing. Jakub Kratochvíl.
Pokud jde o stavební konstrukce, tam neslevil, naopak si vybral to nejlepší. „V tomto jsem měl jasno. Dělal jsem si srovnání, s klasickou nezateplenou třicítkou cihlou plus vnější polystyren jsem se dostával víceméně na cenu zateplené cihly HELUZ FAMILY 50 2in1. Navíc u jednovrstvého zdiva se mi líbilo, že dostávám bonus v podobě pevné tvrdé fasády zvenčí, do které když dítě jednou uhodí řídítkem kola, tak se nic nestane, protože pod omítkou není měkký polystyrenový podklad. Další výhodou jednovrstvé konstrukce je delší životnost než v případě vnějšího zateplovacího systému, zdravější vzduch v interiéru, protože zdivo bez vnějšího zateplení lépe dýchá, takže to byla jasná volba.“
Z dalších konstrukčních prvků si projektant pochvaluje roletové překlady HELUZ: „Je to systémové řešení, které hodně pomáhá zabránit přehřívání interiéru v létě. V keramobetonovém překladu s vloženou izolací z polystyrenu je osazen návin na roletu, která je pak v překladu skryta a na fasádě není vidět. Navíc je to systémový prvek, osadíte ho jeřábkem a máte vyřešen překlad i schránku,“ chválí investor. Jediné, čeho dnes lituje, je, že v době výstavby nebyly ještě k dispozici pro větší sklony střech keramické stropní panely od Heluzu, které udrží komfortnější teplotu v interiéru i v letních vedrech.
Obývací pokoj s výhledem
Na druhou stranu díky tomu mohl vytvořit atypický obývací prostor, otevřený částečně do patra s přiznaným krovem. „Není „falešný“, je to opravdu nosná konstrukce, krokve i vazné trámy jsou z lepeného dřeva a konstrukce střechy je vytvořena nad tím. Obývací prostor je tak mnohem vzdušnější,“ doplňuje investor.
K vzdušnosti a hlavně prosvětlení přispívá i prosklený roh obývacího pokoje. Ten je podobně jako spousta dalších prvků (tepelné čerpadlo s plošným kolektorem po zahradě, okno nad obývákem kvůli snadnému přístupu na střechu bez potřeby žebříku atd.) velmi promyšleným detailem hodným projektanta. „Chystám se postavit ještě domek pro svůj koníček – papoušky a tím rohovým oknem na ně budu mít krásný výhled. Chci mít do deseti voliér, abych se jim dokázal věnovat, je to pro mě relax.“
I tento objekt bude nejspíš zděný a vytápěný, aby se v něm teplomilnému ptactvu dařilo, ale s Blower door testem, který by prokázal parametry pasivní stavby a nárok na dotaci jako u rodinného domu, už investor tentokrát nepočítá.
Pozemek: 1700 m2
Zastavěná plocha domu: 156,60 m2
Užitná plocha domu – 1. NP: 119,12 m2, 2. NP: 90,88 m2
Konstrukce: broušené cihly HELUZ FAMILY 50 2in1, příčky HELUZ, roletové a žaluziové překlady HELUZ.
Zdroj: HELUZ
Foto: Tomáš Dittrich






